Little Domestic Promenade

Adaptive reuse and space reorganization | 2025 | Completed

Little Domestic Promenade

Adaptive reuse and space reorganization | 2025 | Completed

Little Domestic Promenade

The project involves the reconfiguration of an 82-sqm loft located on the top floor of the tallest residential building in Angera, occupying a privileged position within the urban and landscape context of Lake Maggiore. 
Developed through a subdivision process, the unit benefits from a three-sided exposure, offering a panoramic opening of approximately 180°, with expansive views over the lake and the Rocca di Angera. 
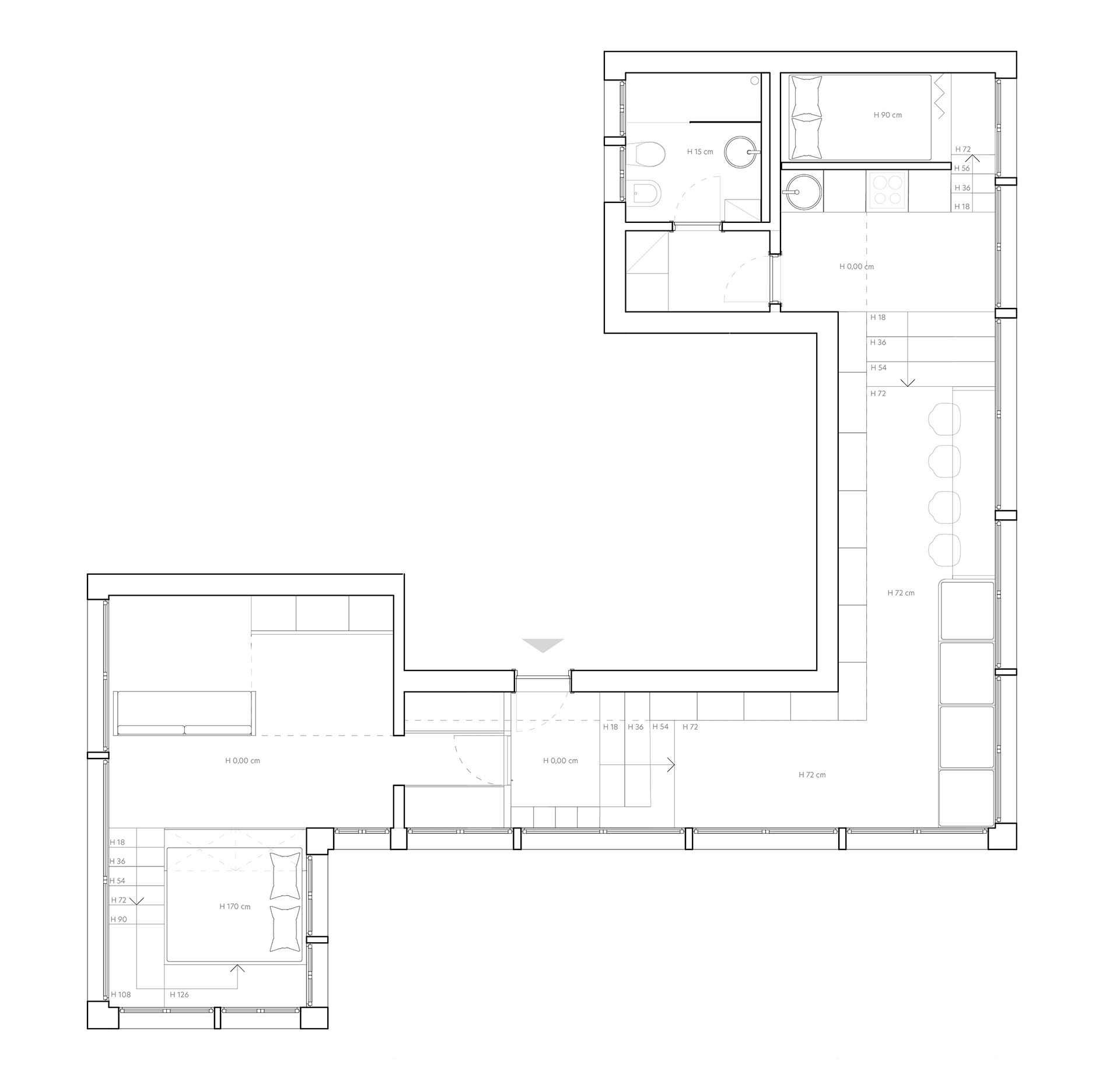
Despite these exceptional conditions, the original space presented significant constraints: a strongly longitudinal, corridor-like layout and the presence of high ribbon windows that limited the direct perception of the surrounding panorama from within. The intervention transforms these constraints into generative design principles, articulating the layout through a calibrated system of level changes—raised platforms, steps, and inhabitable volumes set at different heights—that redefine the spatial sequence and introduce a narrative reading of the domestic environment. 
Rather than resolving the space through purely functional zoning, the project constructs a fluid and rhythmic path, progressively guiding both movement and gaze toward the exterior landscape. Access is provided directly into a raised living area conceived as a linear and continuous space that acts as the distributive backbone of the entire loft. This environment functions as a connective element between the kitchen and service areas on one side, and the suite on the other, the latter conceived as a more intimate and secluded zone. 
The suite integrates the primary bedroom with a raised bed and a more private living area, establishing a gradual transition of privacy within the dwelling. The kitchen is conceived as a true architectural screen: a compact and precisely calibrated element that structures the space while concealing a multifunctional room behind it. 
This flexible area can accommodate different uses, including an additional sleeping space, without compromising the overall visual and spatial continuity of the loft. Careful attention to rhythm, thresholds, and the relationship between body, space, and light informs the entire project, materializing in a spatial sequence where level changes, openings, and voids generate a dynamic and perceptual living experience. The use of essential forms and a restrained architectural language—rooted in natural geometries and a controlled approach to minimalism—defines a deliberately neutral interior. 
Architecture thus becomes a silent backdrop for the surrounding landscape, reinforcing the dialogue between the built space, natural light, and the lake panorama.

Photography @Andrea Ceriani

© Copyright 2024 XYZ srls - P.IVA13451400967 - Privacy & Cookie Policy